FALUN

Hästbergsvägen 13B

Trevlig parhuslägenhet i populära Britsarvet med tilltalande planlösning, fina ytskikt och lummig trädgård. Entrévåning med generösa sällskapsytor, kök samt badrum. Övervåning med den privata delen där tre sovrum och badrum samsas. Fördelaktigt läge med närhet till centrum och Lugnets idrottsanläggn

  • Pris: 2 850 000 kr Slutpris
  • Area: 107 kvm
  • Rum: 4 rum varav 3 sovrum
  • Område: Falun
  • Byggnadsår: 1992

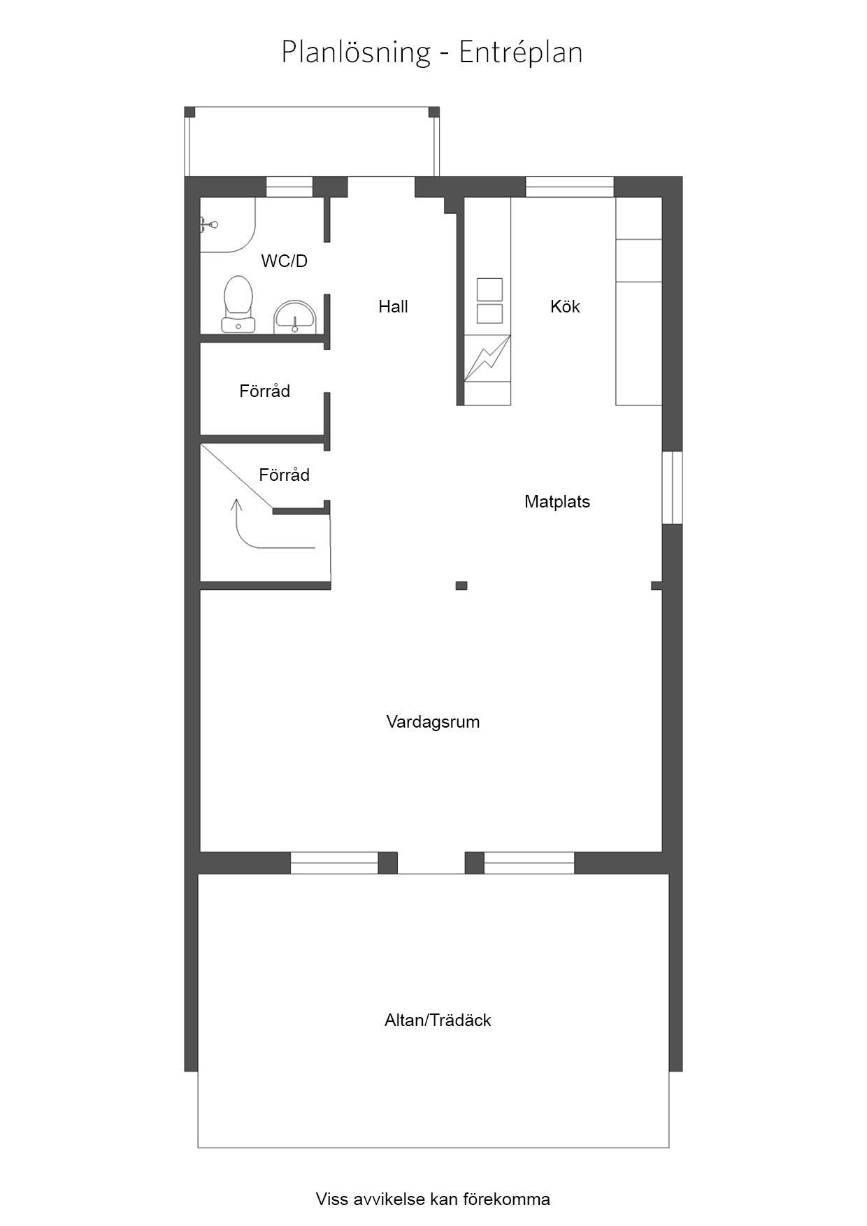
Med ett attraktivt läge i Britsarvet ligger denna välplanerade lägenhet i två plan med genomgående fina ytskikt, ljusa färgsättningar och egen trädgårdstäppa. Entrévåning med kök, badrum och vardagsrum med altan samt vidare utgång till trädgården. Övervåning med tre sovrum och badrum. Barnvänligt område där har du allt på gångavstånd. Flera förskolor, grund- och gymnasieskola samt sportanläggningen Lugnet inom behagligt promenadavstånd. Separat förråd på gården. Stabil förening med god ekonomi!

Visning

Fredrik Smedman

Fastighetsmäklare

+46705681330 fredrik@smedmandalarna.se

Vardagsrum med utgång till trädgården

Välplanerat kök med full maskinell utrustning

Matplats för 6-8 personer

Öppen planlösning mellan köket och vardagsrummet

Vardagsrum mot hall och kök

Helkaklat badrum på övervåningen med dusch och tvättmaskin med inbyggd torktumlare

Wc med dusch på entréplan vid hallen

- Sovrum 1 masterbedroom -

- Sovrum 2 -

- Sovrum 3 -

Egen trädgårdstäppa med utgång från vardagsrummet

Entréplan

Övre plan

Interiör

  • Antal rum: 4 rum varav 3 sovrum

Byggnad

  • Byggår: 1992