FALUN

Moder Elisabeths väg 29B

Letar du efter en modern lägenhet med tilltalande planlösning och lugnt läge har du hittat rätt. Lägenheten har påkostade materialval, genomgående fina ytskikt och hög standard så det är bara att flytta in och börja bo.

  • Pris: 2 800 000 kr Slutpris
  • Rum: 6 rum varav 5 sovrum
  • Område: Falun

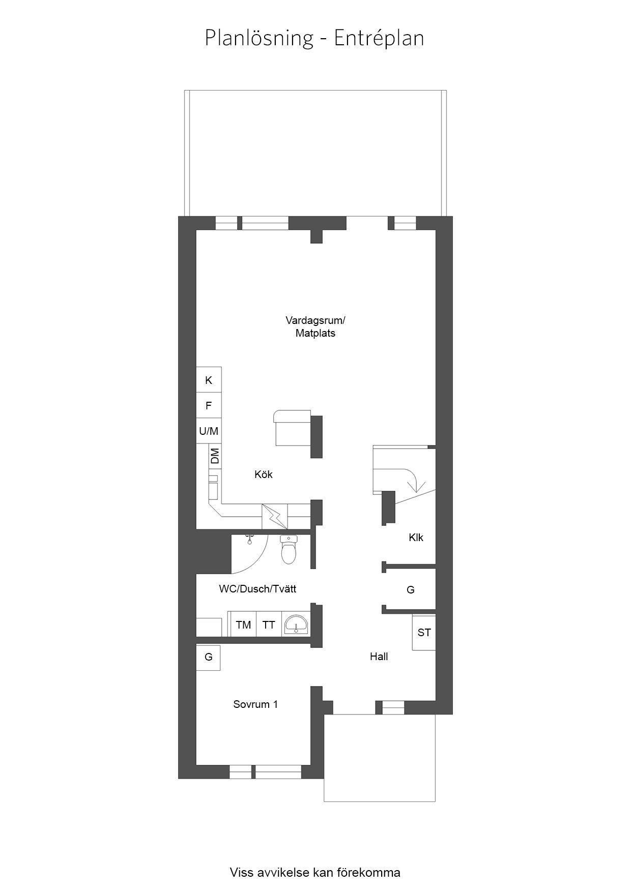
Välkomna till detta välplanerade brf-radhus med stora sociala ytor, generös altan och egen trädgård. Lägenheten har genomgående ljusa färgsättningar, stora fönsterpartier med mycket ljusinsläpp och en trevlig altan som förlänger vardagsrummet innefrån och ut. Entrévåningen med vardagsrum, kök, sovrum och badrum. Övervåning med hela fyra sovrum, badrum och klädkammare. Läget är attraktivt och barnvänligt med promenadavstånd till skola, golfbana i Samuelsdal, Källvikens skidbacke, badplats och nya affärsplatsen vid Tallen med mataffär, systembolag m.m. Vidbyggt förråd vid entrén samt två parkeringsplatser.

Visning

Fredrik Smedman

Fastighetsmäklare

+46705681330 fredrik@smedmandalarna.se

Vardagsrum och kök med öppen planlösning

Generös uteplats med ingång mot vardagsrummet

Trappa mot övervåningen

Matplats för 8-10 personer

Entré plan

Övre plan

Interiör

  • Antal rum: 6 rum varav 5 sovrum