SÄLEN

Tandåbyn 12B

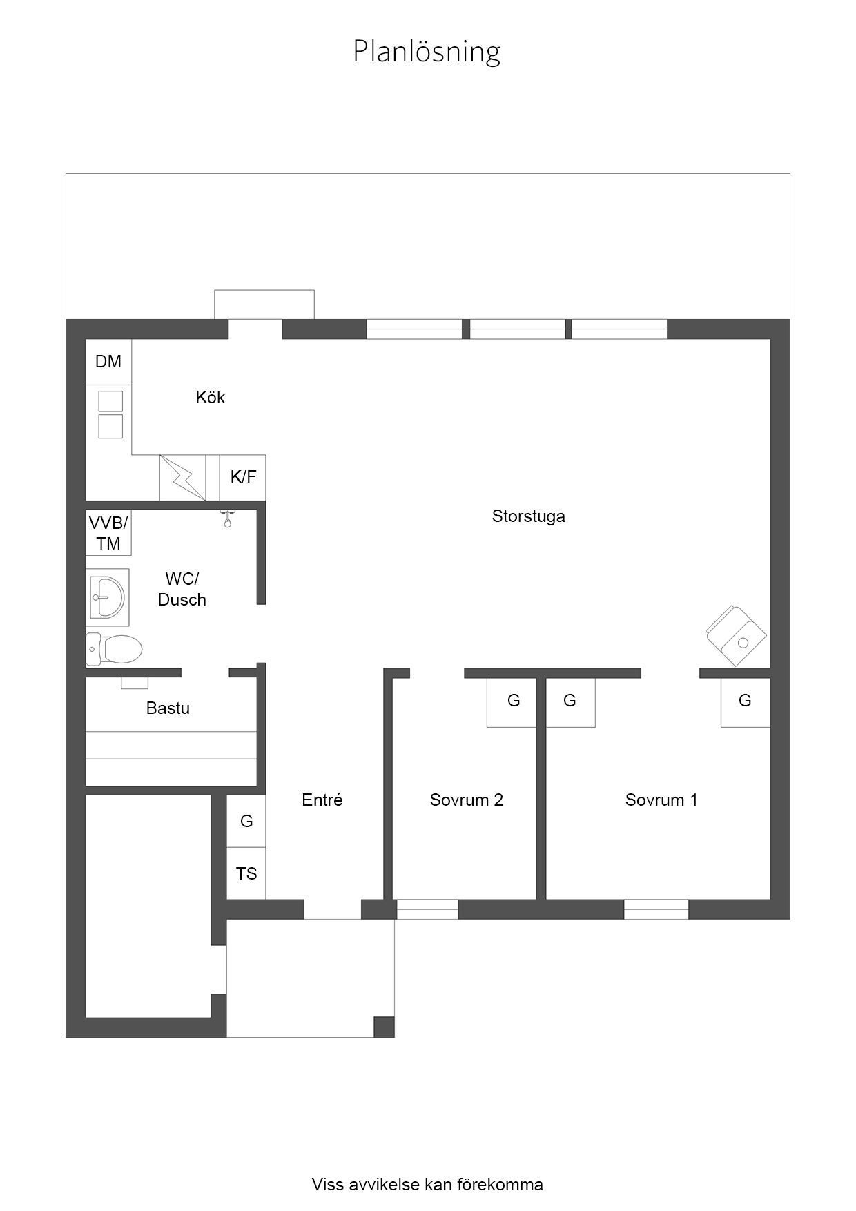
Här visas en välplanerad och yteffektiv parhuslägenhet om 53 kvm med närhet till backarna i Tandådalen. Lägenheten har fönsterpartier med mycket generöst ljusinsläpp, stor altan med utgång från vardagsrummet samt en trevlig braskamin och bastu som uppskattas efter en lång dag i backen.

  • Pris: 2 125 000 kr Slutpris
  • Area: 53 kvm
  • Rum: 3 rum varav 2 sovrum
  • Område: Malung-Sälen
  • Byggnadsår: 1986

Här visas en trevlig parhuslägenhet med optimal planlösning. Lägenheten presenterar två sovrum, badrum med dusch samt bastu, generös altan, vardagsrum och kök med öppen planlösning. Från lägenheten är det närhet till skidbackar, längdspår, mataffär, butiker och restauranger. Tillbyggt förråd till vänster om entrédörren. I föreningen finns det ett vallarrum för preparering av skidorna. Fiber är indraget i lägenheten.

Visning

Fredrik Smedman

Fastighetsmäklare

+46705681330 fredrik@smedmandalarna.se

Närhet till backarna i Lindvallen

Utgång från köket till den trädäckade altanen

Vardagsrum med öppen planlösning mot köket

Funktionellt kök

Braskaminen ger en trevlig känsla till vardagsrummet

- Sovrum 1 med dubbla våningssängar -

- Sovrum 2 -

Badrum med vidbyggd bastu

Tjärn med brygga invid området

Planritning

Närhet till backarna i Tandådalen och Hundfjället

Interiör

  • Antal rum: 3 rum varav 2 sovrum

Byggnad

  • Byggår: 1986