Sälen

Vitmossvägen 9

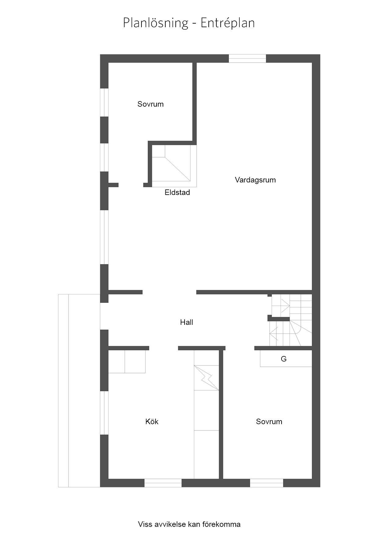
Här visas Ragnarsgården som är ett gediget fjällhus uppfört 1941 med äldre bevarade detaljer och tilltalande planlösning. Huset presenterar vidare 5 rum varav fyra sovrum och ett sovloft med 6 bäddar. Vardagsrummet och ett av sovrummen har öppen spis. Separat förrådsbyggnad på gården.

  • Pris: 4 100 000 kr Slutpris
  • Area: 95 kvm + 21 kvm biarea
  • Rum: 6 rum varav 3 sovrum
  • Område: Malung-Sälen
  • Byggnadsår: 1945
  • Tomtarea: 5 140 kvm

Med ett centralt och attraktivt läge uppe på fjället ligger detta trevliga hus "Ragnarsgården" i äldre bevarad charm. Huset har en ursprungsdel och en tillbyggd del. Planlösningen är tilltalande med kök, vardagsrum och två sovrum på entrévåningen. Övervåning med två sovrum och ett sovloft med 6 bäddar. Huset har fina detaljer så som platsbyggda sängar, öppna spisar, synliga takbjälkar och genuina trägolv.
Läget är centralt med närhet till såväl Sälfjällstorget som Lindvallen.

Visning

Fredrik Smedman

Fastighetsmäklare

+46705681330 fredrik@smedmandalarna.se

Vitmossvägen

Entré plan

Övre plan

Källarplan

Fastighetskarta

Interiör

  • Antal rum: 6 rum varav 3 sovrum

Byggnad

  • Byggår: 1945

Tomt/Uteplats/Bilplats

  • Tomtarea: 5 140 kvm