Tällberg

Laknäs Siljansvägen 603

Med ett trevligt läge i byn Laknäs i utkanten av Tällberg ligger detta fina timmerhus med gedigna material och utsikt över ängarna. Från fastigheten är det behagligt promenadavstånd ner till Siljan och även cykelavstånd in till de centrala delarna av Tällberg.

  • Pris: 1 250 000 kr Slutpris
  • Area: 44 kvm
  • Rum: 2 rum varav 1 sovrum
  • Område: Leksand
  • Byggnadsår: 1965
  • Tomtarea: 825 kvm

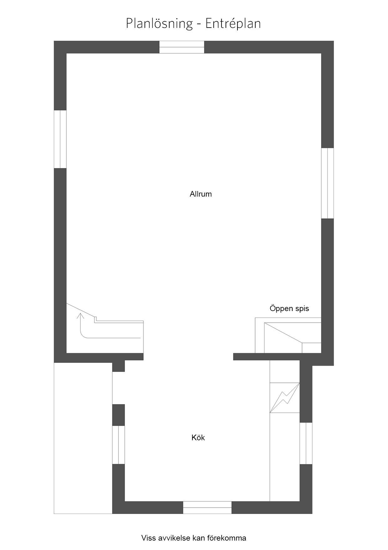
Här visas ett fint timmerhus med naturskönt och lugnt läge. Huset har en härlig karaktär såväl invändigt som utvändigt. Det utvändiga timret tillsammans med tegeltaket och det rödfärgade väggarna skapar en välkomnande känsla. Väl inne i huset möts man av en rejäl öppen spis, grova plankgolv, handsmidda spikar i takpanelen och en inredning som väl följer med tiden. Tomten är lättskött och ligger trevligt med närhet ner till Siljan.

Visning

Fredrik Smedman

Fastighetsmäklare

+46705681330 fredrik@smedmandalarna.se

Vardagsrum med en stoltserande eldstad

Kök mot vardagsrum

Sovrum med fyra bäddar på övervåningen

Takad altan vid sidan om entrédörren

Entré plan

Loft

Interiör

  • Antal rum: 2 rum varav 1 sovrum

Byggnad

  • Byggår: 1965

Tomt/Uteplats/Bilplats

  • Tomtarea: 825 kvm