BORLÄNGE

Hägerstigen 14

Arkitektritad hus från Fiskarhedenvillan i lugna och trevliga villakvarter. Huset har stora sociala sällskapsdelar, fyra sovrum där du med fördel kan använda ett till hemmakontor med egen ingång. Uppväxt trädgårdstomt med fina plattsättningar, vackra planteringar och en inramande tujahäck.

  • Pris: 3 795 000 kr Utgångspris
  • Area: 151 kvm
  • Rum: 6 rum varav 3 sovrum
  • Område: Borlänge
  • Byggnadsår: 1999
  • Typ: Äganderätt
  • Driftskostnad: 44 720 kr/år
  • Tomtarea: 1 013 kvm

Här visas en trevlig enplans villa med attraktivt läge i uppväxta villakvarter. Här får du stora sällskapsdelar, genomgående fina ytskikt, generösa fönsterpartier med mycket ljusinsläpp, insynsskyddad trädgårdstomt som gränsar mot allmänning och ett separat garage. Huset har ett stort kök med matplats och öppen planlösning mot allrummet med burspråk. Vidare finns ett separat vardagsrum med fönsterpartier mot gården samt 4 sovrum varav ett av sovrummen med egen ingång och kan med fördel användas som hemmakontor. Två badrum varav ett med bastu samt separat tvättstuga. Stor altan på entrésidan som förlänger vardagsrummet inifrån och ut. Fin trädgårdstomt med plattsatta gångar, rabatter, fruktträd, flertal bärbuskar och en inramande häck med insynsskydd mot den lugna återvändsgatan.

Visning

Kontakta oss för visning

Fredrik Smedman

Fastighetsmäklare

+46705681330 fredrik@smedmandalarna.se

Välplanerat hus med fin trädgård

Öppen spis i allrummet

Kök med förlängd bänkskiva

Matplats bredvid hallen

Vardagsrummet

Sovrum med skjutdörrsgarderob

Badrum

Stora badrummet

Tvättstuga med utgång till trädgården

Entrésidan

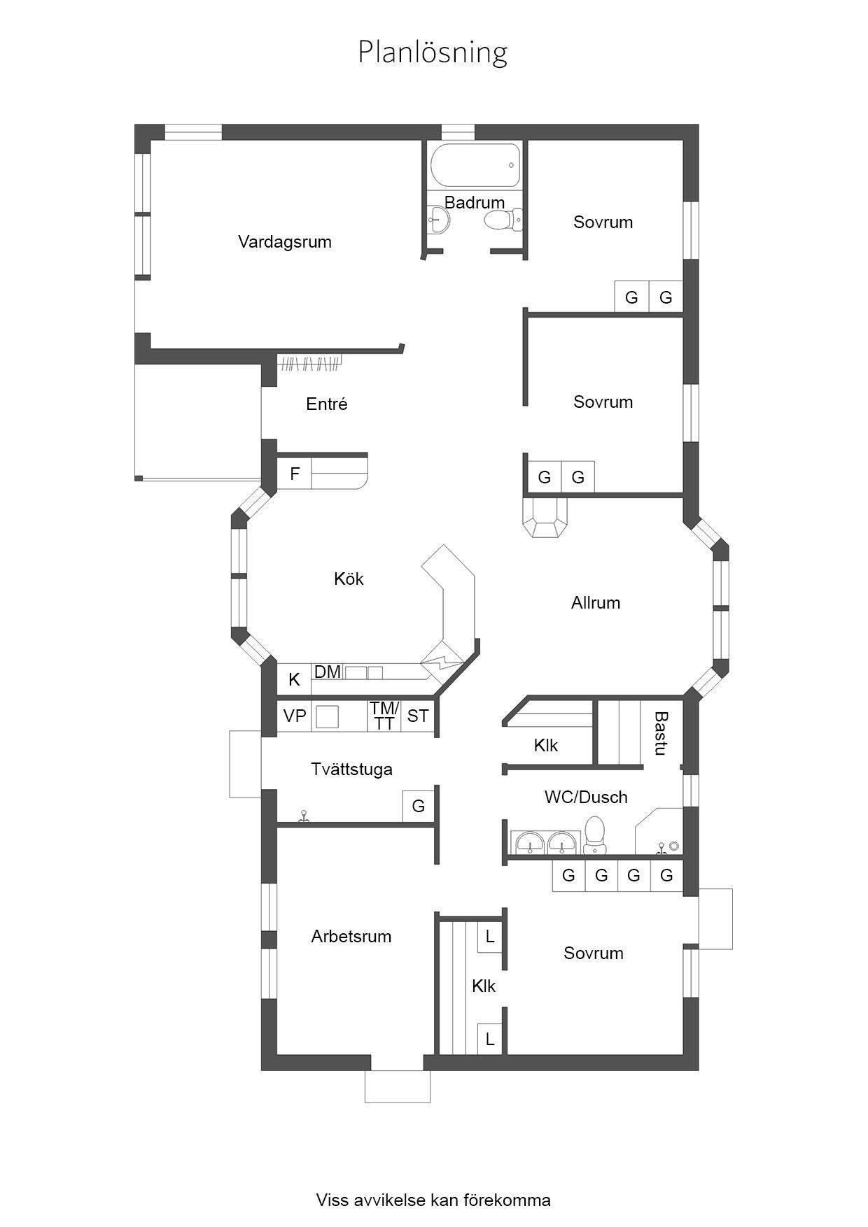
Planritning

Fastighetskarta

Interiör

  • Antal rum: 6 rum varav 3 sovrum
  • Allmän beskrivning: Här visas ett välplanerat hus med genomgående fina ytskikt, ljusa färgsättningar, öppen planlösning mellan kök och allrum som är centrerat i mitten av huset. Köket är rymligt med burspråk, matplats för 8-10 personer, funktionell skåpinredning från Vansbro kök och fullt utrustat med kyl, frys, spishäll med ugn i underskåp, fläktkåpa samt diskmaskin. Mitt emot köket ligger allrummet med burspråk, spröjsade fönster mot baksidan av trädgården och öppen spis som pricken över i. Allrummet kan användas både som matrum eller tv-rum. Till vänster om köket ligger entrén med hatthylla för ytterkläder. I anslutning till hallen ligger två sovrum med bra storlek som vetter mot allmänningen. Badrum invid sovrummen med badkar, handfat med kommod samt wc. Generöst vardagsrum med fönster i två väderstreck och utgång till den trädäckade altanen och vidare ut mot trädgården. På den motsatta sidan av huset finner du det stora badrummet med dusch, bastu samt dubbelkommod från Valhall och inredning från Björbo bad. Tvättstuga med duschplats, tvättmaskin, torktumlare i pelare, arbetsbänk, fjärrvärmepump och utgång till trädgården. Vidare finns det två sovrum varav ett med egen klädkammare, garderobsvägg och även här en egen utgång till trädgården. Det andra sovrummet kan med fördel användas som kontor då det har en egen ingång från gaveln av huset. Vidbyggt garage med förråd samt växthus på tomten. Närhet till Norra Backas handelsområde och Kupolen med butiker av alla de slag. Trevliga strövområden och Tjärnaberget med dess fina natur alldeles intill.

Byggnad

  • Byggnadstyp: Äganderätt
  • Byggår: 1999
  • Fastighetsbeteckning: Prinsen 4
  • Fasad: Stående träpanel
  • Stomme: Trä
  • Fönster: 3-glasfönster
  • Bjälklag: Trä
  • Tak: Betongpannor
  • Grundläggning: Betongplatta
  • Uppvärmning: Fjärrvärme
  • Vatten och avlopp: Kommunalt vatten året om/Kommunalt avlopp
  • Övrigt om byggnaden: 2023 Fjärrvärme växlaren utbytt 2022 Robotgräsklippare installerat 2015 Renoverades båda wc utrymmena och alla golv byttes i hela huset.
  • Övrigt: Kallgarage

    Växthus med både el och vatten

Energideklaration

  • Status: Energideklaration är utförd
  • Utförd: 2024-05-12
  • Energiklass: C
  • Specifik energianvändning: 130 kWh/m²
  • Energiprestanda, primärenergital: 88 kWh/m²

Tomt/Uteplats/Bilplats

  • Tomtarea: 1 013 kvm
  • Tomttyp: Äganderätt

Taxering

  • Byggnadsvärde: 1 945 000 kr
  • Summa taxeringsvärde: 2 396 000 kr

Drift

  • Uppvärmning: 19 102 kr/år
  • Elkostnaden: 12 252 kr/år
  • Årsförbrukning: 5 638 kWh/år
  • VA: 6 081 kr/år
  • Renhållning: 2 404 kr/år
  • Försäkring: 4 881 kr/år
  • Driftskostnad totalt: 44 720 kr/år

Övrigt

  • Övrigt: Central dammsugare
    Golvvärme i hela huset
    Det finns möjlighet att nyttja tomtyta bakom huset för parkering av husvagn/släp
    Automatisk portöppnare till garagedörren via fjärrkontroll
    Rabatter och planteringar är planterad av Bergplant AB