Borlänge

Stenhålsgatan 4A

Central belägen och välskött fastighet vid Stenhålsgatan med tillhörande trädgård, garage och parkeringsplatser. Huset presenterar 4 lägenheter varav 2 lägenheter i markplan om två samt tre rok och två lägenheter på övervåningen om två rok.

  • Pris: 5 500 000 kr Utgångspris
  • Area: 276 kvm
  • Område: Borlänge
  • Byggnadsår: 1938
  • Typ: Äganderätt
  • Driftskostnad: 91 289 kr/år
  • Tomtarea: 1 207 kvm

Här presenteras ett fint 30-talshus med tillhörande trädgård och fina strövområden runt husknuten. Här bor du med närhet till det mesta. Samtliga lägenheter håller genomgående god standard och har funktionella planlösningar. Intäkter om ca 385 000 kr/år.

Visning

Kontakta oss för visning

Budgivning

Fredrik Smedman

Fastighetsmäklare

+46705681330 fredrik@smedmandalarna.se

Dokument och länkar

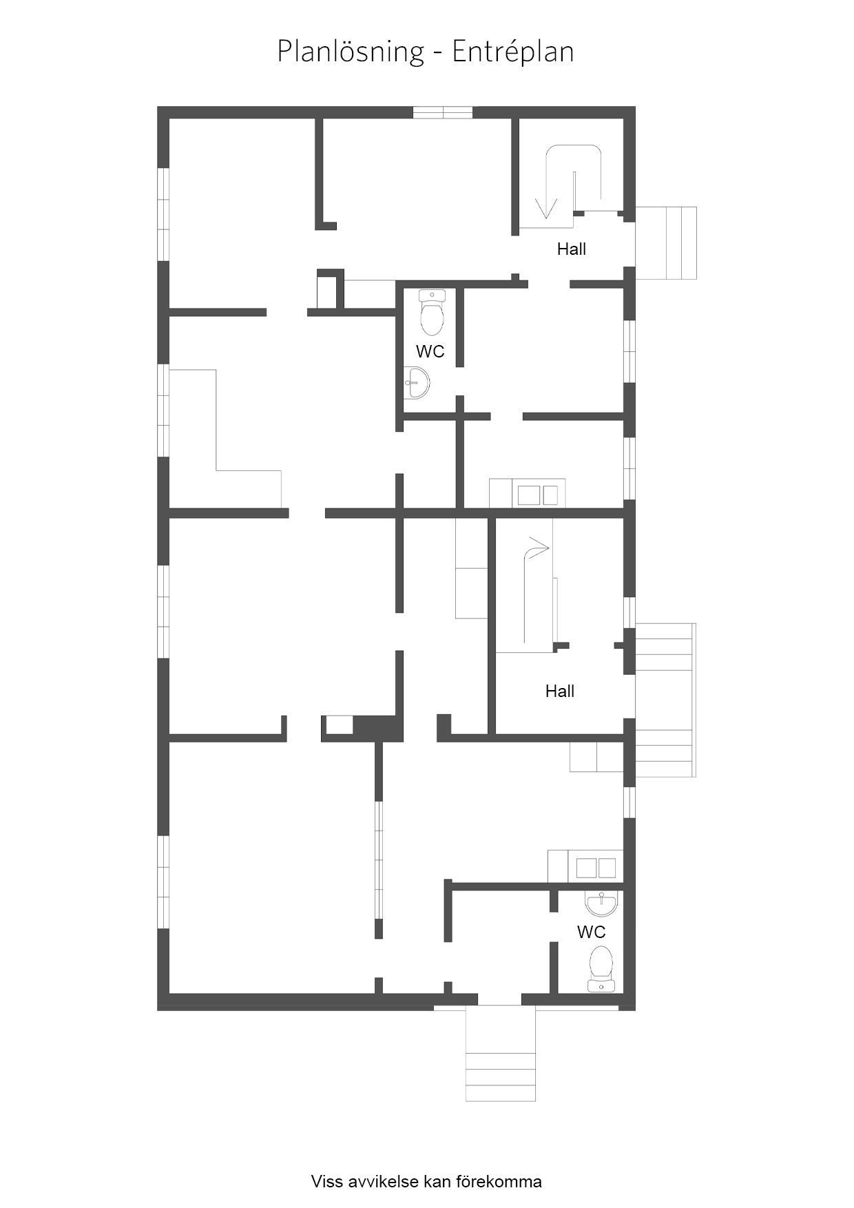
Entréplan lgh 4A samt 4C nedre

Övre plan 4B & 4C övre

Fastighetskarta

Interiör

  • Allmän beskrivning: Beskrivning av lägenheterna på Stenhålsgatan 4
    Lägenhet 4:A i markplan med ingång från gaveln, hall med avhängning, kök med matplats för 4 personer, vardagsrum med fönster mot innergården, sovrum med plats för dubbelsäng och helkaklat badrum.

    Lägenhet 4:B på övervåningen med balkong i vinkel. Trappa från hallen upp till köket med köks-ö, stort vardagsrum med utgång tillbalkong och öppen spis, sovrum med plats för dubbelsäng och helkaklat badrum.

    Lägenhet 4:C nedre med ingång från långsidan. Hall med avhängning, fullt utrustat kök, separat matplats för 6 personer, vardagsrum med fönster mot innergården, sovrum med plats för dubbelsäng och helkaklat badrum med dusch.

    Lägenhet 4:C övre på övervåningen. Hall med avhängning, fullt utrustat kök, separat matplats för 6 personer, vardagsrum med fönster mot innergården, sovrum med plats för dubbelsäng och helkaklat badrum med dusch.

    4a: Två rum och kök 80 kvm
    4b: Två rum och kök 82 kvm
    4c: Två rum och kök, 62 kvm
    4c övre: Tre rum och kök 62 kvm

Byggnad

  • Byggnadstyp: Äganderätt
  • Byggår: 1938
  • Fastighetsbeteckning: BORLÄNGE FORSA 46:148
  • Fasad: Puts
  • Tak: Betongpannor
  • Grundläggning: Källargrund
  • Övrigt om byggnaden: Renoveringar och Förbättringar på Stenhålsgatan 4 Under perioden 2015-2025 har fastigheten på Stenhålsgatan 4 genomgått betydande renoveringar och moderniseringsprojekt för att säkerställa en hög standard och funktionalitet. Våtrum renoverade från 90-talet 2007 Renovering av tak. Tilläggsisolering av vind 2010 Nybyggnation av garage 2015 Renovering av fönster och utvändiga dörrposter, dörrar Installation av diskmaskin i 4b 2016 Renovering av tvättstuga En ny gräsklippare och trimmer inköptes för effektivare underhåll av utomhusyta. (2016) Inköp av gemensamma trädgårdsmöbler 2017 4b: Renovering av inre trapphus Renovering av invändig trappa och trapphus mellan lägenheterna i 4c (jan 2017) Balkongrenovering. Alla staket målades med två-komponentsfärg. Rengöring av tak på garage Målning av garage 2018 Målning av källarutrymmen Ny kyl/frys lägenhet 4c övre 2019 Ny WC i 4b Ny gräsklippare 2020 Byta av låskista till 4c ytterdörr. Ny kyl/frys i lägenhet 4c nedre 2021 Byte av tvättmaskin i gemensam tvättstuga Ny diskmaskin i 4a 2022 Reparation av badrummets takbelysning i 4a Reparation av låscylinder till ytterdörr 4c 2023 Målning av fönster i utsatta lägen 2024 4a Reparation av köksfläkt Ny kyl/frys lägenhet 4a

Tomt/Uteplats/Bilplats

  • Tomtarea: 1 207 kvm
  • Tomttyp: Äganderätt

Taxering

  • Byggnadsvärde: 2 351 000 kr
  • Summa taxeringsvärde: 3 006 000 kr

Drift

  • Uppvärmning: 47 419 kr/år
  • Elkostnaden: 30 536 kr/år
  • VA: 10 028 kr/år
  • Renhållning: 3 306 kr/år
  • Driftskostnad totalt: 91 289 kr/år