Falun

Bokbindarevägen 2

Med ett attraktivt gavelläge längst in på lugn återvändsgata ligger detta välplanerade och genomrenoverade radhus med garage. Vardagsrum, kök, wc samt tvättstuga i markplan. Övervåning med tre stora sovrum, badrum samt klädkammare. Barnvänligt område med närhet till Hälsingbergsskolan F-6. Från huse

  • Pris: 2 795 000 kr Utgångspris
  • Area: 108 kvm + 4 kvm biarea
  • Rum: 4 rum varav 3 sovrum
  • Område: Falun
  • Byggnadsår: 1968
  • Typ: Äganderätt
  • Driftskostnad: 36 149 kr/år
  • Tomtarea: 671 kvm

Visning

20 Nov
18:00 - 19:00
Bokade visningar! Anmälan krävs!
Anmäl dig här

Fredrik Smedman

Fastighetsmäklare

+46705681330 fredrik@smedmandalarna.se

Trädgårdssidan med både balkong och trädäckad altan. Stor gaveltomt

Entrésidan

Generöst vardagsrum med utgång till altanen på trädgårdssidan

Vardagsrummet med matsalsdel

Köket med bra arbetsytor

Matplats för 6-8 personer

Övre hall med ingång till samtliga sovrum, badrum samt klädkammare

-Sovrum 1 på övre plan med utgång till balkong -

- Sovrum 2 på övre plan med utgång till balkong -

- Sovrum 3 med fönster mot entrésidan -

Helrenoverat badrum med fina detaljer på övre plan

Gästtoalett på entréplan

Tvättstuga vid hallen

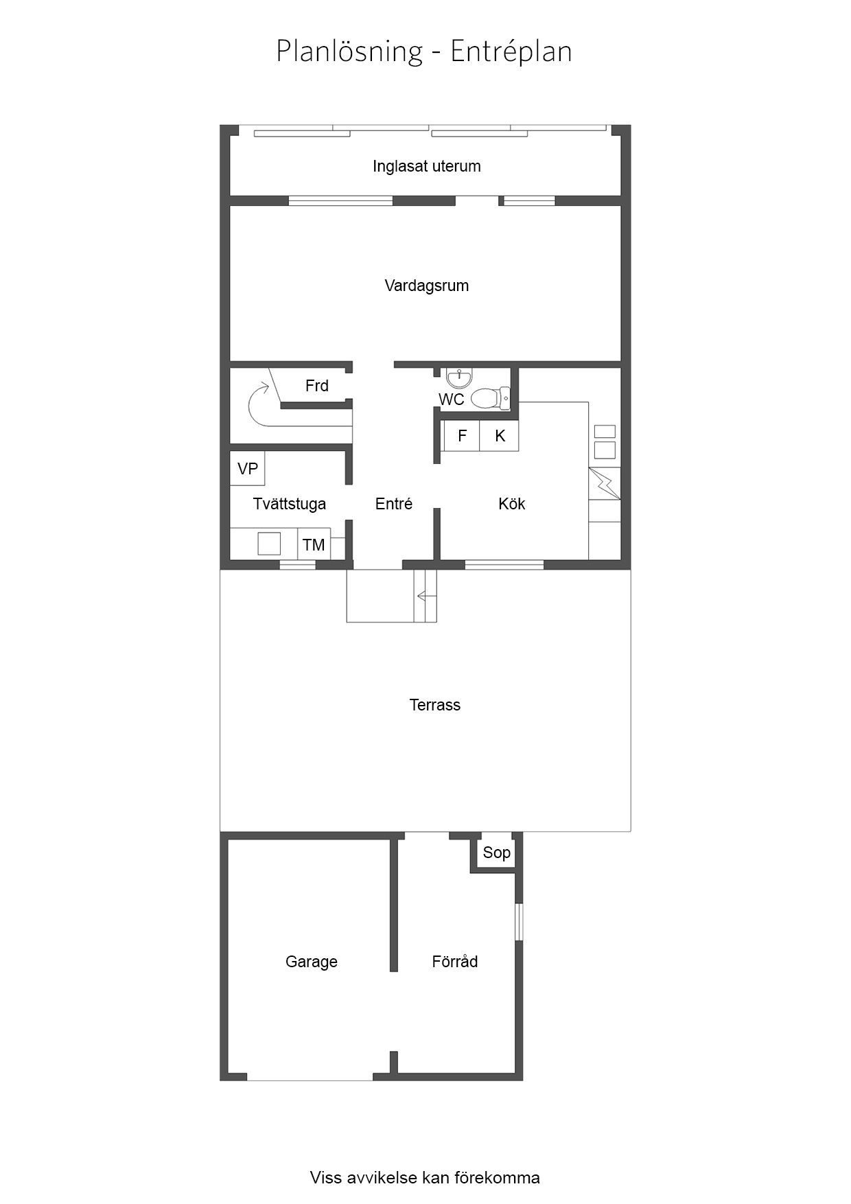
Entréplan

Övre plan

Fastighetskarta

Interiör

  • Antal rum: 4 rum varav 3 sovrum
  • Allmän beskrivning: Välkomnande hall med plats för avhängning. I hallen finns en wc samt tvättstuga. Hallen öppnar upp mot köket och vardagsrummet. Köket är renoverat och fullt utrustat med spishäll, ugn, kyl, frys samt diskmaskin. Köket har matplats för 6-8 personer och fönster mot entrésidan. Vardagsrummet är generöst med plats för både soffgrupp och matplats. Från vardagsrummet är det vidare utgång till den stora altanen mot trädgårdssidan. Trappan från hallen leder upp till övervåningen. Här finns tre sovrum som samtliga håller bra storlek. Två av sovrummen har platsbyggda garderober och utgång till den takade balkongen mot trädgårdssidan. Vidare finns ett badrum som är renoverat med kakel och klinker. Badrummet är utrustat med wc, tvättställ och dusch.
    Kallgarage i direkt anslutning till entrén. Stor hörntomt med gräsmatta och fina lekytor.

Byggnad

  • Byggnadstyp: Äganderätt
  • Byggår: 1968
  • Fastighetsbeteckning: FALUN HÄLSINGGÅRDEN 1:438
  • Fasad: Träfasad
  • Stomme: Trä
  • Fönster: 2-glasfönster
  • Tak: Betongpannor
  • Grundläggning: Platta på mark
  • Uppvärmning: Fjärrvärme
  • Vatten och avlopp: Kommunalt vatten året om/Kommunalt avlopp
  • Övrigt om byggnaden: Förbättringar och renoveringar som är utförda: Altan om 35 kvm Nytt staket Utvändig målning garage Invändig målning Nya golv i alla rum Nytt kök Ny trappa till övre plan Nytt badrum övre plan Tvättstuga renoverad med ny tvättmaskin och torktumlare Gjutit golv i garage

Energideklaration

  • Status: Energideklaration är utförd
  • Utförd: 2016-08-26
  • Energiklass: D
  • Energiprestanda, primärenergital: 127 kWh/m²

Tomt/Uteplats/Bilplats

  • Tomtarea: 671 kvm
  • Tomttyp: Äganderätt

Taxering

  • Byggnadsvärde: 1 105 000 kr
  • Summa taxeringsvärde: 1 911 000 kr

Drift

  • Uppvärmning: 18 634 kr/år
  • El: 3 400 kr/år
  • Årsförbrukning: 2 412 kWh/år
  • VA: 6 075 kr/år
  • Renhållning: 2 260 kr/år
  • Försäkring: 5 780 kr/år
  • Driftskostnad totalt: 36 149 kr/år