SÄLEN

Nordklint 30

Fantastiskt bostadsrätt i Nordklint med vackra vyer.

  • Pris: 5 275 000 kr Utgångspris
  • Area: 95 kvm
  • Avgift: 2 842 kr
  • Rum: 5 rum
  • Område: Malung-Sälen
  • Byggnadsår: 2017
  • Typ: Bostadsrätt
  • Driftskostnad: 3 583 kr/mån

Här erbjuds en modern bostadsrätt med många kvalitéer i hjärtat av nordligaste Dalarna, på gränsen mellan Sverige och Norge. Med ski in- ski out läge i levande vildmarksmiljö, ligger detta skräddarsydda boende med sina anspråksfulla huskroppar. Tanken med husens utformning är att varje hörn ska nyttjas, där de olika rumsligheterna flyter ihop till en helhet med många funktioner. Centralt läge med närhet till det mesta man behöver i vardagen så som mataffär, café, restaurang, skidbacke etc. Härifrån nås allt som Sälen har att erbjuda både sommar- och vintertid. Lägenheten har inte varit uthyrd och säljs möblerad. Bokade visningar enligt överenskommelse!

Visning

Kontakta oss för visning

Fredrik Smedman

Fastighetsmäklare

+46705681330 fredrik@smedmandalarna.se

Dokument och länkar

Utsikt från huset mot fjället

Modern och öppen planlösning mellan vardagsrummet och köket

Matplats för 10-12 personer runt köksbordet

Utsikt över matplatsen och vardagsrummet

Köket mot vardagsrummet

Mysig sitthörna bredvid kaminen

Praktisk hall med förvaring och pjäxtork

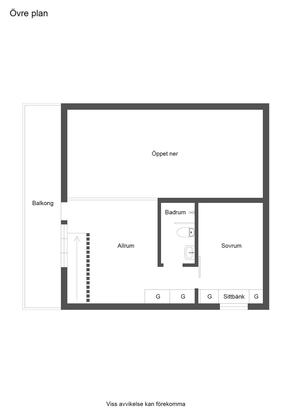
Allrum på övervåningen med utgång till balkongen

Allrum med plats för soffgrupp och mer därtill

Allrummet mot sovrummet

Masterbedroom med garderober och sittnisch

Sovrum invid hallen

Sovrum med fyra bäddar i anslutning till vardagsrummet

Badrum med bastu

Bastu utgång till altanen

Svepande altan i vinkel

Spabad invid bastun

Huset i vinterlandskap

Stöten erbjuder en fantastisk skidåkning och fina naturupplevelser

Säljarens egna bild

Stöten i Sälen - Pistkarta

Entré Plan

Övre Plan

Fastighetskarta

Interiör

  • Antal rum: 5 rum
  • Allmän beskrivning: Välkommen in. Hallen bjuder på sittplatser för av- och påklädning och avhängning av ytterkläder. Det finns både torkskåp och pjäxvärmare. Praktiska detaljer när du varit ute backarna och behöver torka blöta kläder. Köksdelen ligger i öppen planlösning med matplatsen vilket ger fina ljusinsläpp via de stora fönsterpartierna och ger köket en skön karaktär och personlighet. Köket är fullt utrustat med kyl, frys, diskmaskin, induktionshäll och mikrovågsugn. Huset hjärta, det rymliga vardagsrummet ligger med öppen planlösning mot köket. Modernt spröjsade fönsterpartier med svartmålat trä tillsammans med en takhöjd på ca 7 meter till nocken och synliga bjälkar skapar detta en underbar känsla av rymd. Omsluten av klädda väggpaneler och omsorgsfulla detaljer i mörk kulör, skapas en känsla av trygghet. I denna miljö möts aktiviteterna kring matlagning, after-ski med sällskapspel eller en stunds avkoppling framför den sprakande brasan väl placerad mitt i rummet. Vardagsrummet erbjuder plats för soffhörna och här finns det även utgång till balkongen. Fria siktlinjer mellan våningsplanen tillsammans med den generösa takhöjden skapar en känsla av rymd. På loftet hittar du ett trevligt sällskapsrum för vuxna eller varför inte myshörna för barnen. Den stora balkongen med enastående utsikt över omgivningarna och fjället, nås här uppifrån loftet. Vidare in ligger master bedroom med skräddarsydd förvarvaring samt fönsternisch med vacker utsikt. I anslutning till sovrummet ligger det stora helkaklade badrummet. Entré från markplan med skidförråd och parkering i direkt anslutning. Hall med plats för kläder och skor. Trägolv samt liggande träpanel på vägg. På entréplan finner du även två ombonade sovrum, båda inredda med våningssängar klädda med panel i dova färger. Här hittar du även rymliga garderober som ger bra förvaring samt ett förråd/teknikrum med tvättmaskin vilket gör din vistelse här bekväm och trivsam.
    Unikt boende som bör upplevas på plats!

Byggnad

  • Byggnadstyp: Bostadsrätt
  • Byggår: 2017

Tomt/Uteplats/Bilplats

  • Tomttyp: Bostadsrätt

Drift

  • El: 3 083 kr/mån
  • Beskrivning av kostnader: I hushållselen ligger även kostnaden för uppvärmning.
  • Månadsavgift: 2 842 kr/mån
  • Ingår I avgiften: I avgiften ingår snöröjning & vatten. Ägaren betalar själv för värme, hushålls-el, internet (valfritt och tecknas per dygn) och hemförsäkring.
  • Övrigt: VA: 500 kr/mån
  • Driftskostnad totalt: 3 583 kr/mån