Sälen

Renvägen 30C

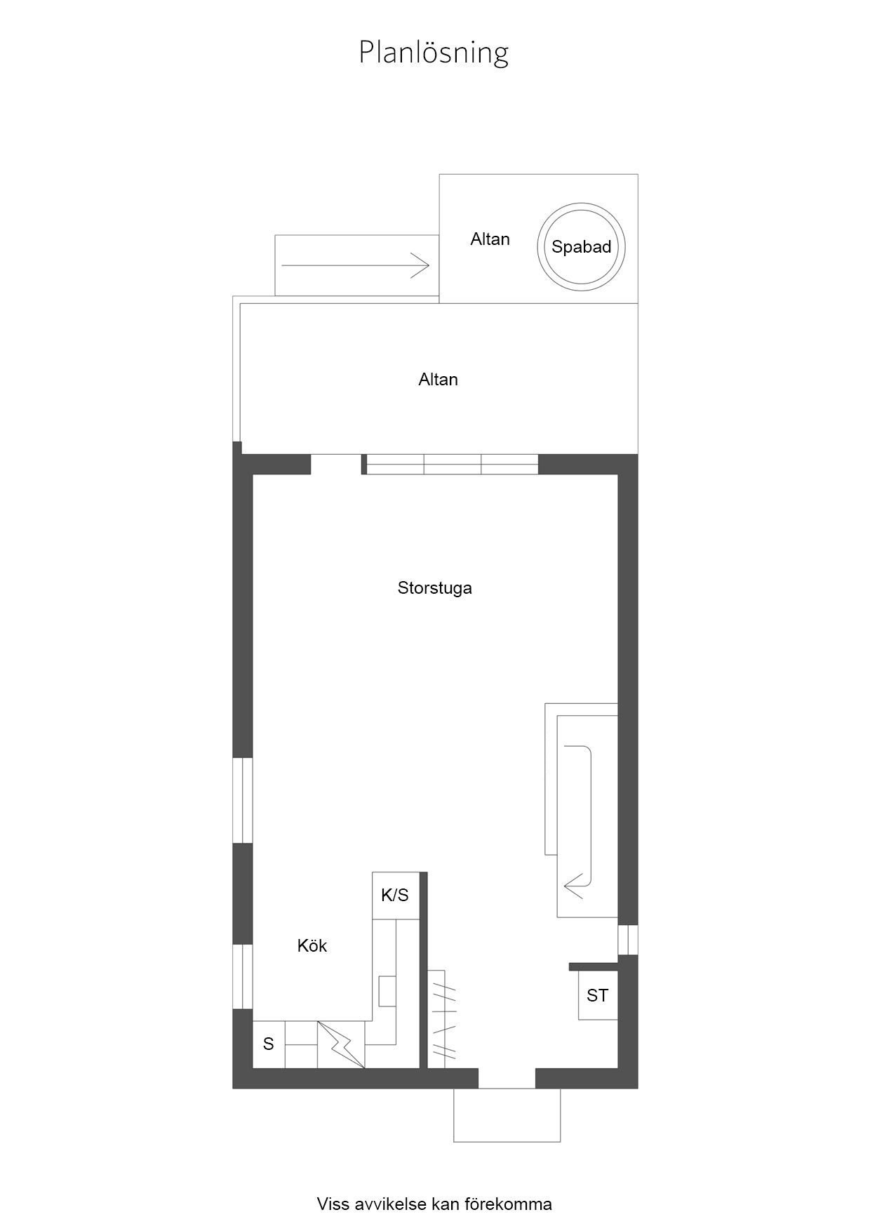
I Västra Färdkällan ligger denna välplanerade och friliggande bostadsrättshus om 70 kvm med närhet till Högfjället, Tandådalen och Lindvallen. Övervåning med vardagsrum och kök i öppen planlösning. Källarvåning med tre sovrum, badrum och bastu. Separat gäststuga med avdelad verkstadsbod.

  • Pris: 2 795 000 kr Högstbjudande
  • Area: 67 kvm
  • Avgift: 2 616 kr
  • Rum: 4 rum varav 3 sovrum
  • Område: Malung-Sälen
  • Typ: Bostadsrätt
  • Driftskostnad: 1 682 kr/mån

Med ett oslagbart läge i Västra Färdkällan med närhet till Högfjället, Tandådalen och Lindvallen ligger detta välplanerade bostadsrättshus. Huset håller genomgående hög standard och har en tilltalande planlösning. De sociala delarna finns på entrévåningen med vardagsrum och kök i öppen planlösning samt vidare utgång till altanen med vedeldat spabad. Den privata delen finns i källarvåningen med tre sovrum, separat wc, dusch och bastu. Vid entrésidan finns en gäststuga med varmbonat sovutrymme och separat skidbod. Från huset är det bara att sätta på sig längdskidorna (spåren är 50 meter från huset), det finns även vandringsleder till bland annat Östfjällstugan och mountainbike led på vägen precis utanför. Lägenheten säljs med tillhörande inventarier.

Kontakta mäklare Fredrik Smedman 0705681330 för bokning av visning!

Visning

Kontakta oss för visning

Fredrik Smedman

Fastighetsmäklare

+46705681330 fredrik@smedmandalarna.se

Interiör

  • Antal rum: 4 rum varav 3 sovrum
  • Allmän beskrivning: Trevligt bostadsrättshus med attraktivt läge på Renvägen i Västra Färdkällan. Det friliggande huset har kök och vardagsrum i öppen planlösning på entréplan. Hall med avhängningsdel och garderob. Hallen öppnar upp både motvardagsrummet och köket. Köksdelen har allt du behöver med kyl/frys, spis och diskmaskin. Vardagsrummet är ljust med utgång till den stora altanen i soligt läge. Vardagsrummet används på ett rymligt sätt både som matplats och umgängesdel med soffgrupp.

    Källarvåningen är funktionell med tre sovrum varav ett större sovrum med dubbelsäng och två mindre sovrum med våningssängar. Vidare finns ett nyrenoverat duschrum med intilliggande bastu. Separat wc med handfat och tvättmaskin.

    Gäststugan invid entrén är praktisk med egen ingång till sovutrymmet. Skidboden har dörr ut mot vägen.

    Föreningen består av 6 lägenheter med adresserna Renvägen 15 och Renvägen 30.


    Utförda renoveringar:
    2025: Diskmaskin, ytskikt stora sovrummet, Badtunna, Friggebod färdigställd (2022-2025)
    2024: Elbilsladdare, Altan
    2019: Ytskikt de mindre sovrummen (2017-2019)
    2017: VV Beredare, Badrum, Toalett, Klinker/golvvärme
    2013: Köksrenovering ytskikt och bänkskivor, Induktions spis, kyl/frys
    2012: Luftvärmepump

Byggnad

  • Byggnadstyp: Bostadsrätt

Våning/hiss

  • Våning: Markplan med suterräng

Drift

  • El: 1 635 kr/mån
  • Årsförbrukning: 9 148 kWh/år
  • Försäkring: 47 kr/mån
  • Beskrivning av kostnader: I hushållselen ingår uppvärmningskostnaden,
  • Månadsavgift: 2 616 kr/mån
  • Ingår I avgiften: I avgiften ingår v/a, renhållning och snöskottning på vägen.
  • Driftskostnad totalt: 1 682 kr/mån

Föreningen

  • Namn: Brf Rene 15/30
  • Org. nr: 716456-7641
  • Grundad: 1988
  • Markägare: Föreningen äger marken
  • Juridisk person accepteras: Ja