Sälen

Snövägen 45B

Trevligt och synnerligen välplanerat hus med bästa läget längst in på återvändsgatan med Kronliften ca 50 meter från fastigheten. Huset håller genomgående bra standard med ljusa färgsättningar, fina materialval och ett nyrenoverat badrum.

  • Pris: 2 895 000 kr Utgångspris
  • Area: 51 kvm
  • Rum: 3 rum varav 2 sovrum
  • Område: Malung-Sälen
  • Byggnadsår: 1991
  • Typ: Äganderätt
  • Driftskostnad: 31 921 kr/år
  • Tomtarea: 579 kvm

Detta trevliga hus är ett attraktivt läge i Stöten med genuin fjällkänsla och närhet till skidbackarna och längdspåren. Huset om 3 rum ock kök har totalt 7 bäddar, öppen planlösning, och generös altan i tre väderstreck. Med Kronliften direkt till vänster om huset har du perfekt ski-in/ski-out läge som tar dig vidare till Soltorget och Stötens hela utbud av backar för både nybörjare och den mer erfarne åkaren. Gillar du att åka längdskidor finns här även fina längdspår princip utanför dörren.

Visning

Kontakta oss för visning

Fredrik Smedman

Fastighetsmäklare

+46705681330 fredrik@smedmandalarna.se

Worldcup backen

Stöten-torget

Fastighetskarta

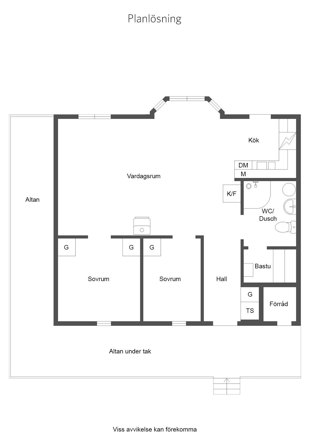
Interiör

  • Antal rum: 3 rum varav 2 sovrum
  • Allmän beskrivning: Hall med avhängning och garderober. Hallen för dig vidare in i huset och öppnar upp mot vardagsrummet. Vardagsrummet är ljust med ett fint burspråk och öppen planlösning mot köket. Här finns även matplats för 6-8 personer samt utgång till en altan. Köket är välordnat med spis, fläkt, diskmaskin och kyl/frys samt god förvaring. Från vardagsrummet når du även de två sovrummen där ett är större med två våningssängar som ger 4 bäddar och ett mindre sovrum med en familjevåningssäng som ger 2+1 bäddar. Badrum med bastu ligger till höger från hallen och är utrustat med dusch, handfat, wc, tvättmaskin och varmvattenberedare samt en egen bastu. En fin altan i tre väderstreck som sträcker sig från entrésidan hela vägen runt till baksidan där du får plats med en sittgrupp för att njuta av solen när vädret tillåter.

    Det finns ett litet skidförråd till höger om entrédörren samt vindsförvaring.

    Fördelaktiga uthyrningsmöjligheter via Stöten.

Byggnad

  • Byggnadstyp: Äganderätt
  • Byggår: 1991
  • Fastighetsbeteckning: MALUNG-SÄLEN TRANSTRANDS KRONOPARK 1:123
  • Fasad: Liggande träpanel
  • Stomme: Trä
  • Fönster: 2-glasfönster
  • Bjälklag: Trä
  • Tak: Betongpannor
  • Grundläggning: Plintar
  • Vatten och avlopp: Kommunalt vatten/Kommunalt avlopp
  • Övrigt om byggnaden: 2022 Renoverat badrum.

Tomt/Uteplats/Bilplats

  • Tomtarea: 579 kvm
  • Tomttyp: Äganderätt
  • Beskrivning uteplats: Trädäckad altan i soligt läge med utsikt mot backarna

Taxering

  • Byggnadsvärde: 849 000 kr
  • Summa taxeringsvärde: 2 156 000 kr

Drift

  • Elkostnaden: 15 658 kr/år
  • Årsförbrukning: 5 576 kWh/år
  • VA: 10 213 kr/år
  • Samfällighet: 6 050 kr/år
  • Driftskostnad totalt: 31 921 kr/år